THE LUCY AT CAMBRIA HOTEL
A contemporary event venue blending Cescaphe’s signature elegance with a modern boutique hotel setting.
The Lucy is a two story wedding and event venue in Philadelphia designed to convert an underutilized space into a contemporary ballroom with a dramatic double height volume. The project required structural coordination to remove an intermediate floor, introduce faux wood ceiling beams, and reshape circulation to support large scale event operations. The interior balances elegant lighting, tailored millwork, and hospitality driven detailing to create a cohesive guest experience.
As Lead Interior Designer, I developed the full concept, spatial planning, ceiling and lighting strategy, bar and stair detailing, and material palette while collaborating closely with the Project Architect on structural integration and code compliance.
Project Team: Eimer Design
Client: Cescaphe / Cambria Hotel
Location: Philadelphia, PA
Year: 2019
Sector: Hospitality / Event Space
Size: 16,000 SF
Cost: $5 million
Type: Interior Renovation
My Role: Interior Designer — Finish Palette Development, Lighting Intent Support, Materiality, Millwork Concepts, Revit Documentation
Status: Completed

CONCEPT DEVELOPMENT
Early conceptual direction defining the multi-use blend of recording studios, performance zones, retail, and collaborative workspace.

DESIGN NARRATIVE
The Lucy at Cambria Hotel transforms an underutilized events floor into a sophisticated, contemporary wedding and banquet venue designed for the Cescaphe hospitality group. The concept blends refined materiality with soft romantic tones, creating a timeless environment suited for ceremonies, receptions, and large-scale celebrations. The design balances elegance with durability, ensuring that high-traffic event operations coexist seamlessly with an elevated guest experience.
A warm, neutral palette provides a versatile backdrop for weddings and special events while architectural lighting, metallic accents, and layered textures bring depth and atmosphere to the space. Strategic updates to circulation, furniture layouts, and finish selections support the venue’s complex operational needs—accommodating catering flows, large guest counts, and diverse event configurations with ease.
By integrating hospitality-driven detailing with clean contemporary lines, the design creates a sophisticated yet adaptable venue that enhances Cescaphe’s portfolio and elevates the overall experience for guests, hosts, and event staff alike.

3D VISUALS
SketchUp-based 3D visuals I developed to study spatial configuration, millwork placement, ceiling transformations, and overall design intent.

CEILING & STRUCTURE
Ceiling design studies and structural coordination exploring lighting integration, load requirements, and the architectural direction for the event space.

Conceptual 3D studies illustrating early spatial directions before the ceiling design evolved into a wood-beam concept that better aligned with the venue’s character.


CEILING STUDY
Ceiling studies addressing irregular existing structural spacing and the cost/feasibility limitations of adding real timber beams. Through detailed coordination with structural engineering, we developed a lightweight faux-wood beam system that achieved the same architectural impact while remaining fully compliant and cost-effective.
DETAILS
The bar became a key architectural feature within the refreshed venue. Detailed millwork studies, lighting integration, and material layering were developed to create a refined focal point that aligns with Cescaphe’s elevated event experience.


AV & LIGHTING DESIGN
AV and lighting design coordination including projection studies, focal color lighting, stage illumination, and event lighting strategies, developed in collaboration with specialty consultants to support the venue’s performance and atmosphere.
DETAILS - STAIRCASE & STAGE
Stair and stage detailing coordinated with the project architect to resolve structural interfaces, lighting integration, safety requirements, and material connections.


DETAILS - SIGNATURE ENTRANCE
Concept development and detailing for the venue’s signature entrance moment, integrating custom lighting, branded signage, and architectural enhancements to create a bold, photo-ready arrival experience.


CUSTOM CARPET DESIGN
A bespoke carpet design crafted with the client and manufacturer, blending tonal geometry and subtle movement to anchor the ballroom’s modern classic aesthetic.


PHOTOGRAPHY
Final photography capturing the completed venue, highlighting architectural interventions, lighting design, and material selections.

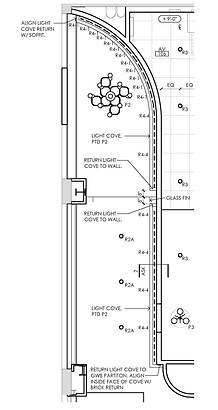
CONSTRUCTION DOCUMENTATION
Full construction documentation package that I led and drafted in AutoCAD, developed in coordination with the Project Architect for structural and stair detailing. The set includes floor plans, RCPs, interior elevations, and custom millwork detailing used for permitting, fabrication, and construction.




























